Céline FERNANDEZ Négociatrice
Télécharger la fiche
+12
Sous-offre Exclusivité

Maison 4 pièce(s) 3 chambre(s) 98 m²

Mondonville (31700)
242 000 € Référence 417

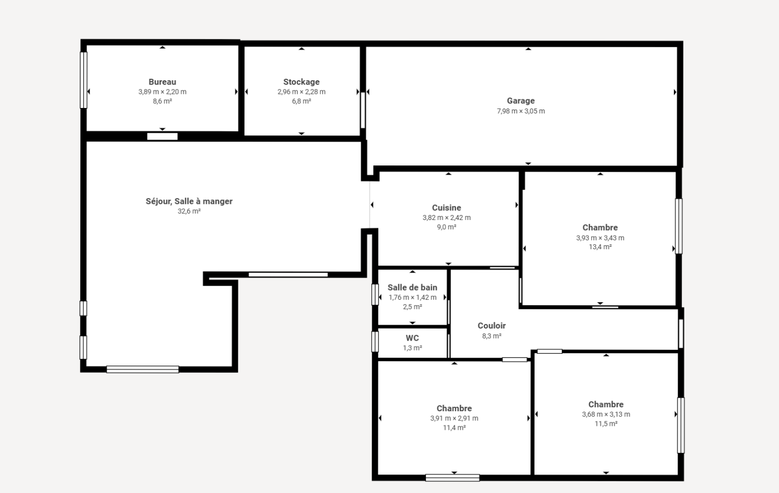
Caractéristiques de ce bien

  • Surface 98 m²
  • carrez 98,35 m²
  • terrain 787 m²
  • séjour 32 m²
  • 3 chambre(s)
  • 1 salle(s) d'eau
  • construit en 1968
  • Chauffage autre : chaudière (fioul)
  • 1 garage(s)
  • 4 parking(s)
  • exposition Sud

A propos de ce bien

À Mondonville, découvrez une maison de plain-pied qui n’attend que votre touche personnelle pour révéler tout son potentiel. Avec environ 98 m² habitables, elle offre une base saine, bien entretenue et idéale pour un projet de rénovation maîtrisé.

A 1.5km de toutes les commodités de Mondonville.
La pièce de vie, largement ouverte vers le sud, profite d’une belle luminosité tout au long de la journée et d’un insert qui apporte un confort supplémentaire. L'espace nuit est composé de 3 belles chambres de 11.5 à 14m². Petit plus, vous profiterez d'un bureau fermé de 8m² pour télétravailler dans le calme.
Le garage attenant permet d’envisager de multiples usages, qu’il s’agisse de stockage, d’atelier ou d’extension selon vos besoins.

La parcelle de 787 m², entièrement clôturée, offre un cadre agréable et sécurisé, parfait pour imaginer un jardin paysager, un potager ou des espaces extérieurs conviviaux.

Piste cyclable devant la maison. Ligne de bus 74 à 200m qui dessert entres autres : le Lycée St Exupéry, le centre Commercial de Blagnac, Cornebarrieu et Mondonville. A deux pas de la forêt de Bouconne.

Acheter à Mondonville aujourd'hui c’est s’assurer un cadre de vie paisible, pratique et recherché, dans une commune qui continue de séduire par son dynamisme et sa qualité de vie.

Ce bien conviendra parfaitement à une famille souhaitant s’installer dans un environnement verdoyant et sécurisé, tout comme à une personne âgée recherchant le confort du plain-pied et la proximité des services essentiels.

Pour tout renseignement complémentaire, vous pouvez contacter l'agence S&F Immobilier Associés au O5.61.99.72.24 ou Céline FERNANDEZ au O7.86.18.29.06. Les informations sur les risques auxquels ce bien est exposé sont disponibles sur le site Géorisques : www.georisques.gouv.fr.

Communes proches : Cornebarrieu, Blagnac, Colomiers


Les informations sur les risques auxquels ce bien est exposé sont disponibles sur le site Géorisques

Composition du bien

Rez-de-chaussée

  • Entrée 8.30 m²
  • CH 1 11.6 m²
  • CH 2 11.4 m²
  • WC 1.40 m²
  • salle d'eau 2.55 m²
  • Ch 3 14 m²
  • cuisine 9 m²
  • salon/sejour 32.25 m²
  • bureau 8.66 m²
  • garage 23 m²
  • buanderie 6.65 m²
  • terrasse 8 m²

Diagnostics énergétiques

Consommation énergétique
A B C D E F G
Emission de gaz à effet de serre
A B C D E F G

Montant estimé des dépenses annuelles d'énergie pour un usage standard est compris entre 1 850 € et 2 560 € . Prix moyens des énergies indexés sur les années 2021, 2022 et 2023 (abonnements compris).

Informations financières

Prix de vente honoraires TTC inclus 242 000 €
Prix de vente honoraires TTC exclus 230 476 €
Honoraires TTC à la charge acquéreur 5 %
Taxe foncière annuelle 1 322 €

Autour du bien

  • Commerces et santé
  • Loisirs
  • Ecoles
  • Transports
  • Pratique

Calcul des mensualités

* Champs obligatoires